Weststrasse 74
CH-8003 Zürich

Tel: +41 (0)44 201 91 09
info(at)muellersigrist.ch

 

Dokumentation PDF De En        Instagram

 

VBZ Hardau, Erweiterung der Busgarage

VBZ Hardau, Erweiterung der Busgarage

Auftraggeberin: Verkehrsbetriebe der Stadt Zürich VBZ
Vertreten durch: Stadt Zürich, Amt für Hochbauten AHB
Wettbewerbsart: Planerwahlverfahren
Rang/Preis: 1. Rang
Jahr: 2014

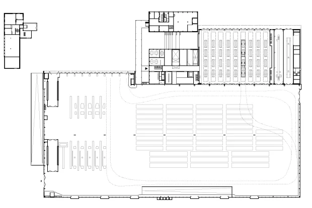
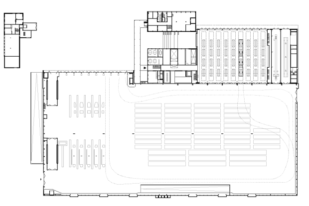
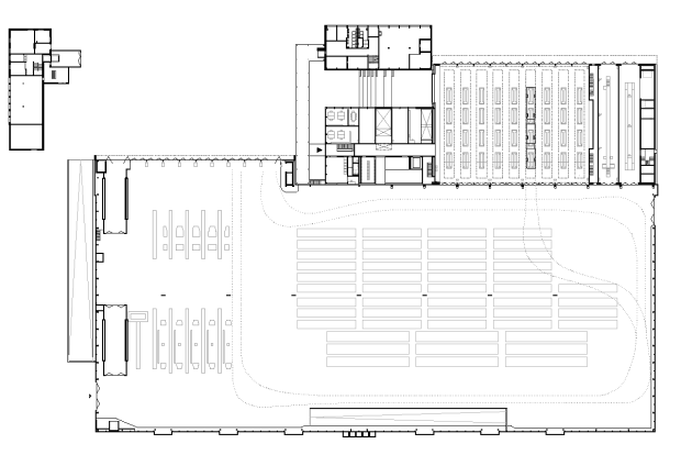
Der neu geplante Ersatz der Werkstatt und des Servicegebäudes der Busgarage Hardau liegt im Westen von Zürich, in unmittelbarer Nähe zu den Hardau Hochhäusern und dem Stadion Letzigrund. Zusammen mit der bestehenden Bushalle und dem Dienstgebäude bilden die neuen Gebäudeteile ein großmaßstäbliches Konglomerat.

Die neue Werkstatt ist in der Tradition des Hallenbaus als raumhaltige Stahlkonstruktion mit Sheddächern konzipiert. Das dreigeschossige Servicegebäude wirkt durch seine zentrale Lage als Scharnier und beherbergt verschiedene dienende Funktionen.

ausgeführt 2020