Weststrasse 74
CH-8003 Zürich

Tel: +41 (0)44 201 91 09
info(at)muellersigrist.ch

 

Dokumentation PDF De En        Instagram

 

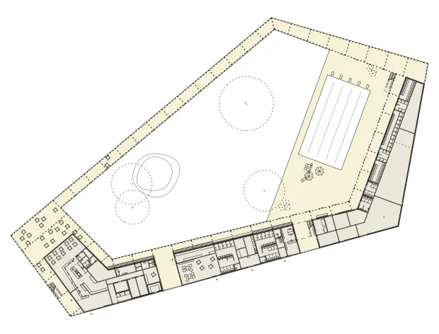
Strandbad Lido

Strandbad Lido, Sarnen

Auftraggeberin: Gemeinde Sarnen
Wettbewerbsart: Studienauftrag
Rang/Preis: 2. Rang
Jahr: 2007
Projektpartner: Dipol Landschaftsarchitekten

Das fünfeckige Hauptgebäude gliedert den Park in einen Strand mit Liegewiese und eine Sportzone. Über einen schattenspendenden Laubengang, der rund um den Holzbau verläuft, betritt man Restaurant, Camping-Infrastruktur und Garderoben. Eine Dachterrasse dient besonders abends dem Aufenthalt und als Veranstaltungsort.