Weststrasse 74
CH-8003 Zürich

Tel: +41 (0)44 201 91 09
info(at)muellersigrist.ch

 

Dokumentation PDF De En        Instagram

 

Siedlung Mutachstrasse, Bern

Siedlung Mutachstrasse, Bern

Auftraggeberin: Immobilien Stadt Bern
Wettbewerbsart: Investoren- und Projektwettbewerb
Rang/Preis: 2. Rang
Jahr: 2017
Projektpartner: Studio Vulkan Landschaftsarchitektur, Zürich

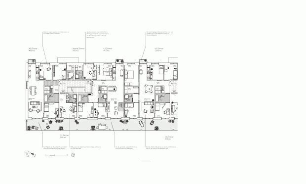
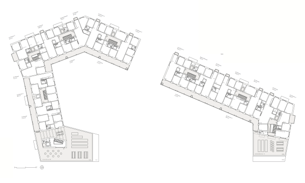
Zwei langgezogene und abgewinkelte Baukörper bilden eine Klammer um einen gefassten Wohnhof, welcher sich nach Süden zum neuen Stadteilpark hin öffnet. Mit der Gebäudeform und der Stellung der Bauten wird eine klare räumliche Unterscheidung zwischen öffentlichen Zonen und gemeinschaftlicher Nutzung für die Bewohnerinnen und Bewohner erreicht. 

Die charakterbildende Balkonschicht wird als Wohnlaube ausgebildet und aktiviert den zentralen Hofraum. Ein weiterer kleiner Balkon bei den Küchen entlang der Spiel- und Erschliessungsstrasse rhythmisiert die nördlichen Fassaden. 

Eine Vielfalt unterschiedlicher Wohnungen und Wohnungsgrössen bildet die Grundvoraussetzung für eine sozial durchmischte Bewohnerschaft.