Weststrasse 74
CH-8003 Zürich

Tel: +41 (0)44 201 91 09
info(at)muellersigrist.ch

 

Dokumentation PDF De En        Instagram

 

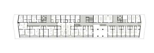
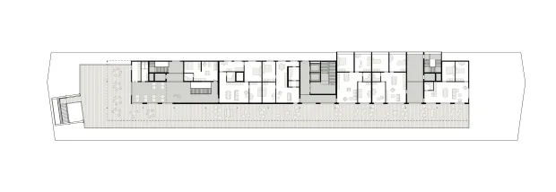
Umnutzung Felix-Platter-Spital, Basel

Umnutzung Felix-Platter-Spital, Basel

Auftraggeberin: Genossenschaft wohnen & mehr
Wettbewerbsart: Projektwettbewerb
Rang/Preis: 1. Rang
Jahr: 2018
Baumanagement: Rapp Architekten, Basel-Münchenstein

Das feingliedrige äussere Erscheinungsbild des ehemaligen Spitalgebäudes bleibt vollständig erhalten. In den Obergeschossen finden 130 Wohnungen Platz, ein breiter Mix von Budget- und Maisonettewohnungen über neue Wohnformen bis zu Joker- und Gästezimmern. Eine kaskadenartige Treppe führt vom Erdgeschoss bis aufs Dach. Sie verbindet die Wohngeschosse und fördert den Austausch unter den Bewohnerinnen und Bewohnern. Herzstück des umgenutzten Spitalgebäudes ist das doppelstöckige Foyer. Von hier aus sind die öffentlichen Nutzungen im Parterre über eine innere Gasse erschlossen. Gleichzeitig verbindet das Foyer den künftigen Quartierplatz auf dem Westfeld mit der Hegenheimerstrasse und es entsteht eine grosszügige, öffentliche Querung.

ausgeführt 2022