Weststrasse 74
CH-8003 Zürich

Tel: +41 (0)44 201 91 09
info(at)muellersigrist.ch

 

Dokumentation PDF De En        Instagram

 

Ersatzneubau Wehntalerstrasse 580-584, Zürich

Ersatzneubau Wehntalerstrasse 580-584, Zürich

Bauherrschaft: UBS Fundmanagement (Switzerland) AG
Wettbewerbsart: Gesamtleistungswettbewerb
Rang/Preis: 1. Rang
Jahr: 2023
Projektpartner: Halter AG

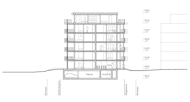
Das neue Gebäude orientiert sich an der Körnigkeit und Massstäblichkeit der bestehenden Siedlungsstrukturen und legt sich so als Passstück in die limitierenden Baulinien, um optimal von Ausblick und Besonnung profitieren zu können. Das gesamte Haus ist trotz beengten Platzverhältnissen in einen üppigen Grünraum eingebunden.

Die Gebädeform basiert auf einem quer gestellten Zeilenbau und widersetzt sich der abschottenden Bauweise der Lärmschutzarchitekturen entlang der Wehntalerstrasse. In Kombination mit der Ausrichtung der Wohnungen und den Massnahmen gegen die Lärmimmissionen wird ein Projekt entwickelt, welches vollumfänglich und ohne Ausnahmebewilligungen den Anforderungen des baulichen Lärmschutzes entspricht und auch die privaten Aussenbereiche bestmöglich vor Lärmeinwirkungen schützt. Mit den einhergehenden gestalterischen Eingriffen und entsprechender Grundrisstypologie werden die Wohnungen vom Lärm geschützt und orientieren sich weg vom benachbarten Gebäude zur Besonnung hin. 

Die insgesamt 45 Wohnungen werden über zwei Treppenhäuser als 4- und 5- Spänner erschlossen und orientieren sich über die abgedrehten und grosszügig ausgebildeten privaten Aussenräume in unterschiedliche Richtungen.