Weststrasse 74
CH-8003 Zürich

Tel: +41 (0)44 201 91 09
info(at)muellersigrist.ch

 

Dokumentation PDF De En        Instagram

 

Aebiareal, Burgdorf

Aebiareal, Burgdorf

Auftraggeberin: Alfred Müller AG
Wettbewerbsart: Studienauftrag
Rang/Preis: 1. Rang 
Jahr: 2018
Projektpartner: Albiez de Tomasi GmbH, Zürich
Visualisierung: Nightnurse Images, Zürich

Zusammenspiel der Baufelder – Neuinterpretation Aebi-Halle
Die Bauten der Baubereiche A1, A2 und F sind als ein Ensemble gedacht, welches der städtebaulich prominenten Lage gerecht werden soll. Das Zusammenspiel der Baufelder, die Nähe zum Bahnhof und die dadurch die gute Erreichbarkeit sind Qualitäten des Aebi Areals. Die Aebihalle ist ein prägendes Gebäude mit Charakter und es werden Elemente der Fassadengestaltung aufgenommen und neu interpretiert: Ausformulierung des Sockelgeschosses, vertikale Betonprofile, leicht überstehendes Vordach. In der gegliederten Fassade wird die industrielle Vergangenheit spürbar.

Aebihof, Zentrumsplatz und Pocketpark
Die Aussenraumflächen weisen ein grosses Potential als urbane Begegnungsorte auf, welche das Areal bereichern und beleben. Die Baubereiche B und E werden voraussichtlich später realisiert, deshalb der Vorschlag für temporäre Nutzungen welche einfach realisiert werden können und als Zwischnutzung einen Mehrwert darstellen: urban gardening, improvisierte Spielflächen, Sitzgelegenheiten, Feuerstelle. Beim Gebäude A1 verbindet eine grosszügige Freitreppe die beiden Niveaus der Tiergartenstrasse und dem Aebihof. Ein offener, feingliedriger Pavillon ermöglicht wettergeschützte Anlässe im Freien.

Der Aebihof ist klar gefasst durch die umliegenden Gebäude und dient als Spiel- und Aufenthaltsbereich, als gemeinschaftlicher Ort der Begegnung und Kommunikation. Das beim Pocket Park  vorgesehene Baumdach soll Schatten für die Besucherparkplätze spenden. Vom Pocket Park her führt ein eingeschossiger Durchgang zwischen den Gebäude A1 und A2 in den Aebihof. Beim Zentrumsplatz wird eine polyvalente, urbane Spielfläche konzipiert auf welcher unterschiedliche Nutzungen und Aktivitäten stattfinden können.

Die publikumsorientierten Nutzungen sind grundsätzlich gut erkennbar in den Erdgeschossen angebracht und beleben das Areal zusätzlich. Die Erdgeschosse sind offen und einladend gestaltet, der Bezug zwischen Innen- und Aussenraum wird dadurch erlebbar.

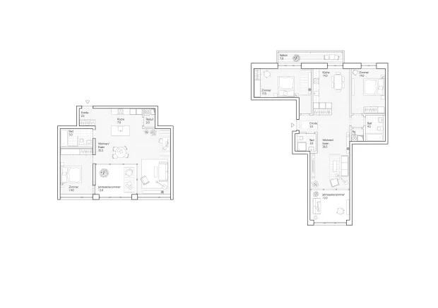
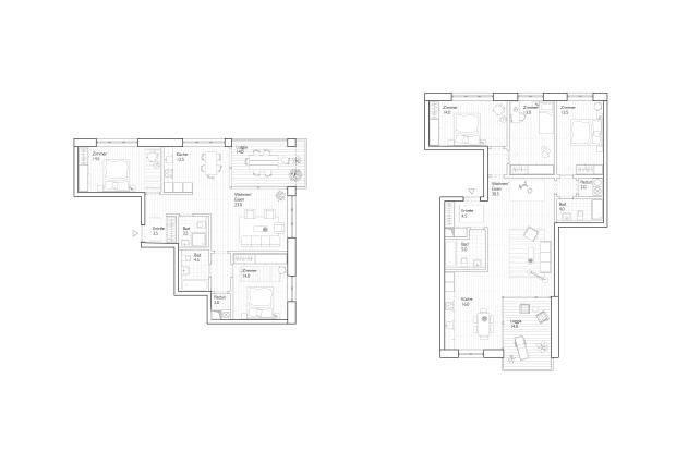
Wohnarchitektur – Eigentumswohnungen – Verwaltungsbau
Ein vielfältiges Angebot an Wohnungen wird vorgeschlagen. Sowohl die Miet- wie auch die Eigentumswohnungen weisen grosszügige, offene Wohn- Essbereiche auf, die Tag- und Nachtbereiche sind separiert und lassen auch das klassische Familienwohnen zu. Alle Wohnungen sind schwellenlose Geschosswohnungen. Das Gebäude A1 ist fünfgeschossig, das Gebäude A2 siebengeschossig konzipiert , beide sind geprägt durch einen kräftigen Betonsockel und ein Vordach aus Betonelementen. Die Erschliessung der Wohnungen erfolgt rückseitig über den Aebihof. Kinderwagenräume und Briefkastenanlagen befinden sich im Erdgeschoss.

Der Verwaltungsbau F ist strukturiert durch zwei massive Betonkerne und tragenden Stützen im Fassadenbereich. Die Anordung der Kerne ermöglicht sehr hohe Flexibilitat und alle möglichen Büroformen (Grossraum, Praxisgemeinschaft, Einzelbüro). Die Erschliessung erfolgt nordseitig. Im Erdgeschoss wird der Niveauversprung genutzt, durch die zwei Ebenen entstehen spannende räumliche Situationen. gemeinsame Kaffeepause an der frischen Luft.

Etappierung - Zwischennutzung – Tiefgarage
Die Tiefgarage wird in einer 1. Etappe unter den Gebäuden A1 und A2 erstellt, in der 2. Etappe unter dem Gebäude F und letztendlich im Endzustand mit den Gebäuden B-E. Dies ermöglicht auch die erwähnte Zwischennutzung. Gärtnern, Spielen, Feiern am Rande des neuen Aebiareals. Die zeitliche Abfolge ist noch zu definieren in den Planungsphasen.

ausgeführt 2025