Weststrasse 74
CH-8003 Zürich

Tel: +41 (0)44 201 91 09
info(at)muellersigrist.ch

 

Dokumentation PDF De En        Instagram

 

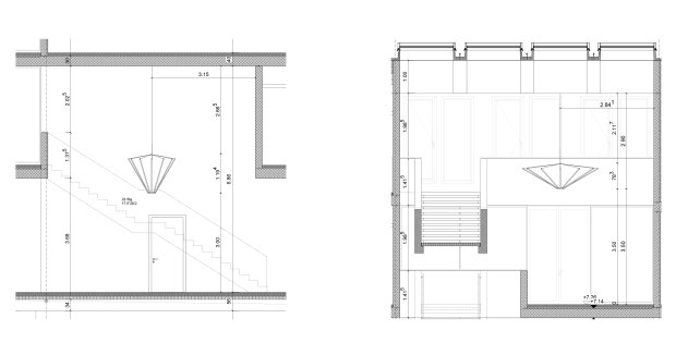
Leuchte Opilion

Neues Gemeindehaus Volketswil

Pendelleuchte Opilion

Bauherrin: Gemeinde Volketswil
Jahr: 2013
Projektpartner/Zusammenarbeit: Fluora Leuchten AG

Die Pendelleuchte mit 12 LED-Leuchtstoffröhren und aluminiumfarbener Metallkonstruktion soll den Erschliessungshallen gediegenen Charakter verleihen. Die Röhren sind im Grundriss sternförmig angeordnet. Als Reaktion auf die verschiedenen Raumproportionen gibt es zwei Ausführungen mit unterschiedlicher Auffächerung.