Zentrum Steinhausen

«Dreiklang» von Wohnen, Einkaufen und Begegnung

Auftraggeberin: Gemeinde Steinhausen
Wettbewerbsgewinn: 2010, 1. Rang
Realisierung: 2014–2017
Baukosten: 58 Mio. CHF
Projektpartner: GMS Partner AG (Planergemeinschaft)
Nachhaltigkeit: Minergie-P

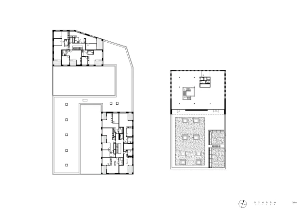
Ein Platz, zwei Neubauten und drei Höhenakzente verbinden Wohnen, Einkaufen und Begegnung.

Neues Gesicht für das Dorfzentrum

Durch Lage und Position der neuen Gebäude entsteht eine abwechslungsreiche Raumfolge inmitten von Steinhausen. Die unterschiedliche Materialisierung der Bauten unterstützt die Absicht mit zwei Stadtbausteinen die benachbarten Bauten aus unterschiedlichen Jahrzehnten miteinzubinden.

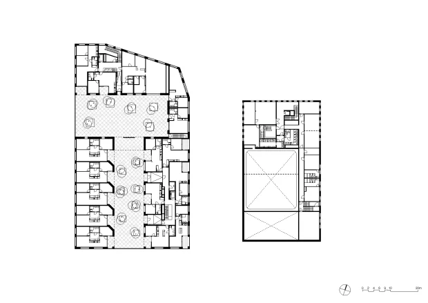
Raum für Kultur und Gemeinschaft

Der öffentliche Bau erhielt eine umfassende Verkleidung mit glänzenden Keramikplatten sowie goldgelb eloxierten Metallprofilen bei den Verglasungen. Über ein seitlich belichtetes Foyer ist der unterteilbare Mehrzwecksaal im Erdgeschoss erschlossen. Die akustisch wirksame Holzverkleidung und grosse abgehängte Leuchten verleihen ihm eine angenehme festliche Atmosphäre. In den Obergeschossen befinden sich die Künstlergarderoben, Sitzungszimmer sowie die Gemeindebibliothek mit begehbarer Dachterrasse. 

Wohnen und Einkaufen am Zentrumsplatz

Im Nachbarbau sind im Erdgeschoss die Verkaufs- und Betriebsflächen des Grossverteilers angeordnet. In den oberen Geschossen sind 38 altersgerechte Wohnungen mit grosszügiger gemeinschaftlicher Dachterrasse untergebracht. Grossformatige Betonplatten mit eingefügten Klinkerelementen bilden die Fassade und vereinen die unterschiedlichen Nutzungen.