Migros Oberdorf, Affoltern am Albis

Leben und Einkaufen an der Piazza

Auftraggeberin: Genossenschaft Migros Zürich
Wettbewerb: Studienauftrag auf Einladung 2009, 1. Rang
Realisierung: Submissionsplanung 2012, Ausführung 2015–2017, Ausführung durch GU
Baukosten: ca. 35 Mio CHF
Projektpartner: Haag Landschaftsarchitektur, Ghisleni Planen Bauen GmbH

Durch sein Raumprogramm aus Gewerbe und Wohnen verbindet sich der Neubau mit der bestehenden Anlage zu einem Einkaufs- und Begegnungsort in der Mitte von Affoltern.

Einkaufen an der Piazza

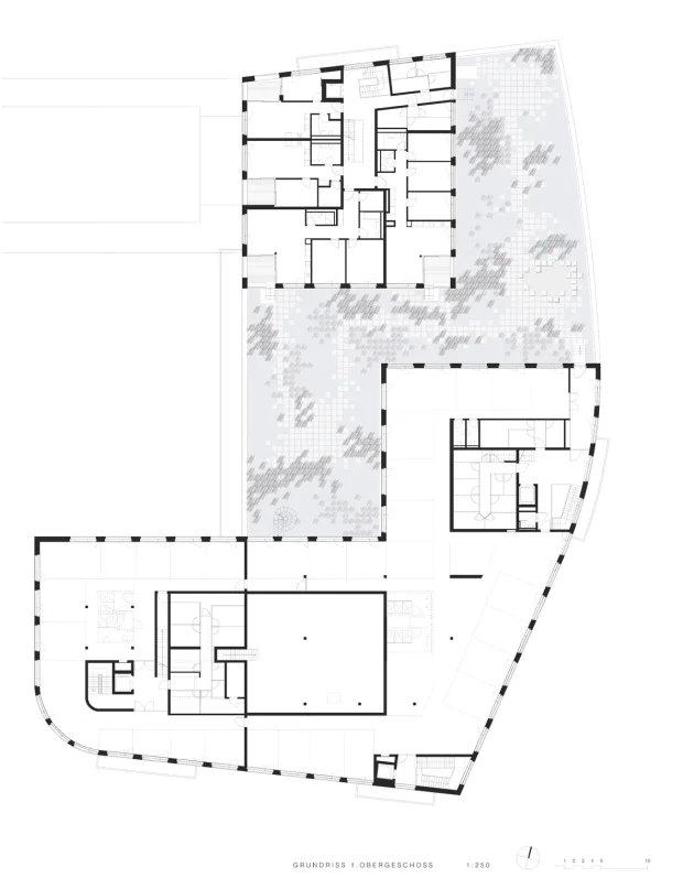
Das Volumen der Überbauung wird in drei Baukörper gegliedert, die in ihrer Masstäblichkeit und durch ihre Körnung mit den umliegenden Bauten vermitteln. Der Zentralweg mündet in einen Arkadengesäumten Platz von welchem aus alle Läden und Eingänge gedeckt erschlossen sind. Die Piazza ist Begegnungsort und bietet Raum für temporäre Stände und Veranstaltungen. 

Dienstleistung und Verkauf: flexibel und übersichtlich

Sowohl die Verkaufsfläche der Migros sowie das Dienstleistungsgeschoss sind als zusammenhängende maximale Fläche mit einer einfachen Stützenanordnung konzipiert. So sind verschiedene Konzepte anwendbar und Flexibilität ist auch für die Zukunft ist gewährleistet. Eine übersichtliche Garage mit minimierten Kernen bedient Bewohner und Besucher.

Wohnen im Zentrum

Die 34 Wohnungen im 2. und 3. OG werden mit nur drei Treppenhäusern effizient erschlossen. Waschküchen und Kellerräume befinden sich in der unmittelbaren Nähe der Wohnungen im Innern der tiefen Baukörper. Alle Wohnungen verfügen über gute Besonnung und beste Ausblicke. Sämtliche Dachflächen des Gebäudes sind begrünt und nebst gemeinschaftlichen Terrassen ist jeder Wohnung ist ein privater Sitzplatz zugedacht.