Weststrasse 74
CH-8003 Zürich

Tel: +41 (0)44 201 91 09
info(at)muellersigrist.ch

 

Dokumentation PDF De En        Instagram

 

VBZ Hardau

VBZ Hardau

Erweiterung der Busgarage 
Auftraggeberin: Verkehrsbetriebe der Stadt Zürich VBZ
Vertreten durch: Stadt Zürich, Amt für Hochbauten AHB
Wettbewerbsgewinn: Planerwahl 2014, 1. Rang
Realisierung: 2017–2020
Projektpartner: Walter Pasquale Baurealisation GmbH
Baukosten: ca. 38 Mio

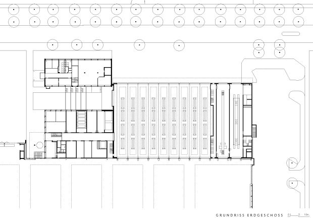
Die Busgarage der Verkehrsbetriebe Zürich (VBZ) aus den späten 1960-Jahren umfasste mehrere Gebäude, die instand gesetzt wurden. Eine Werkhalle und ein Servicegebäude wichen dagegen Neubauten. 

Shedhalle mit Fotovoltaikanlage

Die neue Werkhalle folgt als Stahlkonstruktion mit Sheddächern einer Tradition des Hallenbaus. Durch die steileren, nordwestorientierten Seiten der Dachreiter fällt Tageslicht ins Gebäudeinnere, die anderen Dachflächen dienen einer Fotovoltaikanlage. Neu sind die Standplätze der Werkstatt mit fixen Arbeitsbühnen, welche dem Fachwerkraster der Dachkonstruktion folgen.

Klein aber zentral

Das Servicegebäude ist zwar das kleinste der Anlage, übernimmt aber zwischen der neuen Werk- und einer bestehenden Bushalle eine wichtige Scharnierfunktion. Es fasst Büros, Schulungs-, Aufenthalts- und Lagerräume. Da die ursprüngliche Sprinkler- und Elektrozentrale im Untergeschoss bestehen blieb, ist das Gebäude in Leichtbauweise erstellt. Äusserlich knüpfen raumhohe Verglasungen und farbig anodisierte Aluminiumpaneele an die Ästhetik von Bürobauten an. Ein Provisorium für die Reparatur der Fahrzeuge gewährleistete den Betrieb während der Bauphase und wird seither als einfache Halle genutzt.