Weststrasse 74
CH-8003 Zürich

Tel: +41 (0)44 201 91 09
info(at)muellersigrist.ch

 

Dokumentation PDF De En        Instagram

 

Umnutzung Felix Platter-Spital, Basel

Umnutzung Felix Platter-Spital, Basel

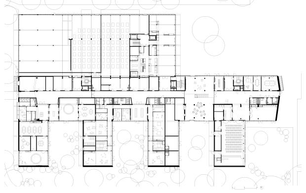
Ein Spital als Wohngemeinschaft

Auftraggeberin: Baugenossenschaft wohnen & mehr
Wettbewerbsgewinn: 2018, 1. Rang
Realisierung: 2020-2022
Baukosten: 73 Mio. CHF
Projektpartner: ARGE mit Rapp Architekten (Baumanagement)

Erbaut wurde das ehemalige Felix Platter-Spital 1962–1967 von den Architekten Fritz Rickenbacher und Walter Baumann. Mit unterschiedlichen Sanierungsstrategien konnte das Baudenkmal in seiner Erscheinung erhalten und - unter erheblichen Aufwendungen zur Erdbebenertüchtigung - einer neuen Nutzung zugeführt werden. 

Im Parterre finden sich Kinderbetreuungsangebote, Quartierläden, Treffpunkte, Gewerberäume und ein Bistro, in den Obergeschossen befinden sich 130 kompakte, vielfältige Wohnungen: von Budget- und Maisonettewohnungen über neue Wohnformen bis zu Joker- und Gästezimmern. Herzstück des umgenutzten Spitalbaus ist ein doppelstöckiges Foyer, das die öffentlichen Nutzungen erschliesst und gleichzeitig eine wichtige öffentliche Querung im Quartier darstellt. Eine kaskadenartige Treppe führt vom Erdgeschoss bis aufs Dach und fördert so den Austausch der Bewohner miteinander. 

Alle Südwohnungen verfügen über private Aussenräume in Form unbeheizter Jahreszeitenzimmer. Ermöglicht werden diese durch eine zweite Fensterebene hinter der bestehenden Fassade, die neu aus einfach verglasten Schiebeelementen besteht. Dies verlängert nicht nur die Nutzbarkeit der Loggien (Wintergarten), sondern bewahrt auch das äussere Erscheinungsbild des Gebäudes.