Weststrasse 74
CH-8003 Zürich

Tel: +41 (0)44 201 91 09
info(at)muellersigrist.ch

 

Dokumentation PDF De En        Instagram

 

Gemein­de­haus Volketswil

Neues Gemeindehaus Volketswil

«Eine neue Mitte»

Auftraggeberin: Gemeinde Volketswil
Wettbewerbsgewinn: 2010, 1. Rang
Realisierung: 2012-2014
Baukosten: 34,5 Mio. CHF
Projektpartner: Halter Generalunternehmung, Planikum GmbH Landschaftsarchitektur 
Nachhaltigkeit: In Anlehnung an Minergie-P

Infrastruktur und Städtebau hielten nicht mit dem starken Bevölkerungswachstum Schritt. Volketswil wollte ein effizientes Gemeindehaus an zentralem Standort – und nichts weniger als «eine neue Mitte».

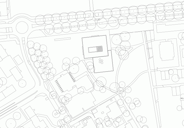
Zwischen Dorfplatz und Park

Seit Mitte der 1990er-Jahre arbeitet Volketswil an einem neuen Ortszentrum, das den Namen verdient. Ein Kultur- und Sportzentrum sowie ein Park wurden bisher errichtet. Unser Gemeindehaus haben wir so platziert, dass an der Hauptverkehrsachse des Ortes ein neuer Dorfplatz entsteht. Es steht zwischen Platz und Parkfläche, was zwei verschiedene öffentliche Aussenräume schafft.

Klassisches Äusseres

Das Gebäudevolumen besteht aus zwei Kuben, die scheinbar ineinandergeschoben sind. Es nimmt Bezug auf die Aussenräume und die bestehenden Bauten. Die kubische Erscheinung sowie die vertikale Fassadengliederung geben dem Bauwerk ein klassisches und beständiges Äusseres.

Mehr als effizient

Der Fassadenraster, das Tragsystem und die Erschliessung sind auf hohe Effizienz und Flexibilität ausgerichtet. Die Verwaltung, welche hier zentralisiert wird, erhält aber nicht nur gut organisierte Büros. Das innere Herzstück ist eine grosse Empfangshalle, welche den Dorfplatz mit dem Park verbindet. Zwei gedeckte Innenhöfe und ein Dachgarten bieten hohe Aufenthaltsqualität.